+41 44 930 40 40
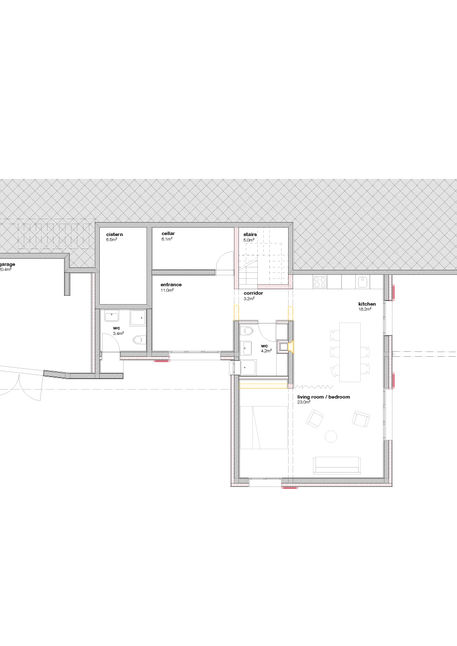
Umbau Ferienhaus Vis

Das Haus am Meer, in der Adria zwischen Kroatien und Italien auf der Insel Vis gelegen, wird umgebaut und erweitert. Die unmittelbare Nähe zum Meer prägt das Klima gelichermassen, wie auch die Anlage und Ausrichtung des Hauses. Der Wind mit seinen spezifischen Richtungen, der Verlauf der Sonne, sowie die salzige Luft haben Einfluss auf räumliche Raumabfolgen von Innen- und Aussen oder die Auswahl der Materialien. Der Ort mit den spezifischen Bedingungen beeinflusst die Architektur bis ins kleinste Detail. Das einfache und naturnahe Leben vor Ort, soll sich bewusst in der zurückhaltenden und reduzierten Architektur manifestieren.
Direktauftrag 2022
Programm: Ferienhaus
Auftraggeber: Privat
Architektur | Städtebau: studio te GmbH
Statik: K2S Bauingenieure AG
Bauphysik: Kuster und Partner AG
Baumanagement: mi2 studio







